NORDAU 65

Sderot Nordau, Tel Aviv-Jaffa, Israel

Considered a rare masterpiece, the project is evaluated based on its
creativity and meticulous investment in the minutest details. Nordau
BLVD prioritizes finish-level specifications, deliberately chosen from
top-tier companies in both Israel and around the globe.

The nine apartments within the project feature a distinctive interior design, fostering a
luminous, warm, and embracing living experience. The generously proportioned rooms
convey the unique essence of Tel Aviv to Nordau Avenue, striking a balance between
maintaining maximum intimacy and ensuring living comfort. Each apartment comes
complete with a balcony that opens to the living spaces and offers a scenic view of the
verdant boulevard, allowing for a life fully immersed in splendor.
The lot at 65 Nordau Avenue boasts a rectangular and narrow shape, mirroring the typical
dimensions of most lots on the north side of the boulevard. The design simplicity of the
rectangular structure aligns seamlessly with the lot’s boundaries and orientation. Wide
openings facing north create quality views from every floor onto Nordau Boulevard. The
building’s design pays homage to the White City, featuring terrazzo tiles in public spaces
and utilizing the characteristic concrete prevalent in residential structures in the area.

The apartments:
BULTHAUP kitchen
Indulge in unwavering luxury featuring the pinnacle quality of BULTHAUP kitchens.
Defined by a delicate fusion of elegance, precision, aesthetics, and functionality.
3B kitchen Models | COLORCORE finishing
Crafted using a distinctive laser technology exclusively designed by BULTHAUP,
these kitchens exhibit exceptional resistance to scratches and impacts while
maintaining ease of cleaning.
Opening Handle – a recessed handle equipped with the grip touch mechanism.
Sink cabinet – the base of the sink cabinet, featuring a stainless steel finish, is
safeguarded against water penetration into the cabinet (backless unit). Access is
facilitated through the touch mechanism.
Drawers – constructed with an aluminum body, available in a choice of two colors.
Sinks – sourced from Niga, embodying uncompromising quality.
Cutting-edge electrical appliances for an optimal kitchen experience
LIEBHERR and SUB ZERO integrated refrigerators (subject to apartment
specifications) offer a contemporary and streamlined aesthetic for your kitchen.
V-ZUG induction cookers provide a sleek appearance with comprehensive control
options for a tidy and modern kitchen setup.
A FOSTER oven featuring an easy-to-clean surface and advanced programs for
versatile cooking and baking experiences.
Dishwashers from V-ZUG’s ADORA line, offering advanced features for efficient
and effective dish cleaning.

Kitchen Work Surfaces:
Opt for a model from a distinctive range of quartz surfaces by Fervital, offering
various shades and finishes. Alternatively, choose from Caesarstone models
(pending apartment specifications). The stone selected is resilient against
scratches, erosion, and boasts low absorption. It exhibits resistance to heat,
moisture, staining substances, and acids.
Flooring and Coverings by HeziBank ceramics and Fervital:
Select natural stone that resists scratches and erosion, with low absorption,
and withstands heat, moisture, staining substances, and acids.
Sanitary Ware:
Explore offerings from the world’s leading brands, supported by service
from HazyBank, ensuring an unwavering commitment to top-notch service
standards.


Floor Plans

  • GARDEN APARTMENT
  • 2 ROOMS APARTMENT FRONT
  • 2 ROOMS APARTMENT BACK
  • 4 ROOMS APARTMENT
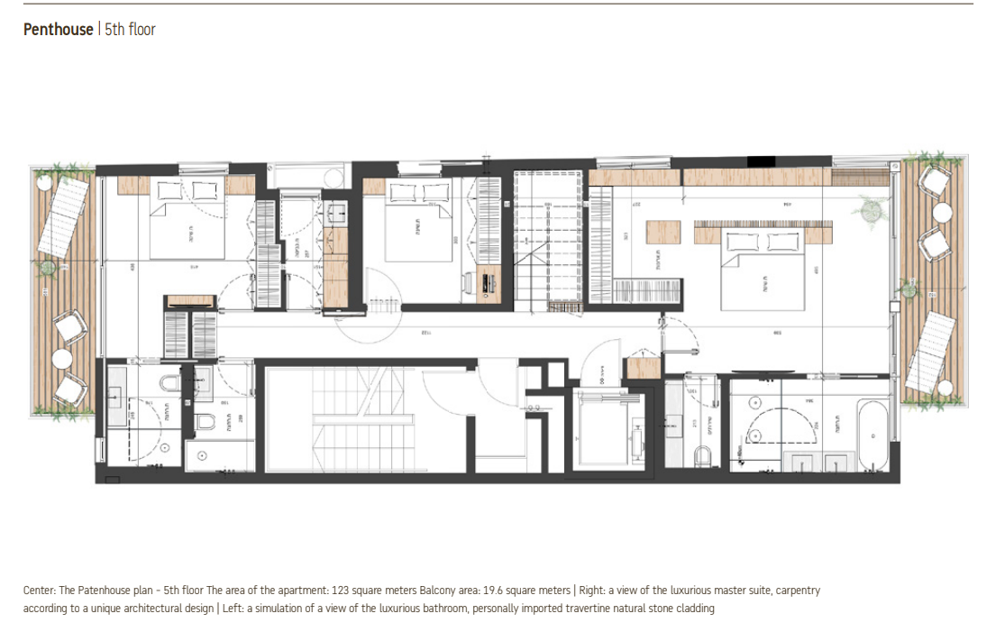
  • PENTHOUSE 5TH + 6TH FLOOR
  • PENTHOUSE 5TH + 6TH FLOOR
img
img
img
img
img
img
  • PRICE UPON REQUEST
    • 2 | Rooms
    • 1 | Bath
    • 58 Sq m | Property Size
    • 10 Sq m | Balcony
    • Location : Sderot Nordau, Tel Aviv-Jaffa, Israel

    Compare listings

    Compare
    cindy zemour
    • cindy zemour